400平米风格别墅,预算38万
2018-05-13 11:01 来源:装修保障网 作者:川渠装饰 阅读()
业主是次装修,房屋总面积400平米,考虑到生活需求,业主将400平米的房子装修成别墅。业主钟爱风格,所以房子整个装修风格都是采用的。业主透露本套400平米的房子半包装修只花了38万。一起来看看效果图吧!
装修公司:别墅装修找申远-申远空间设计
设计理念:区别于传统中式风格的厚重与严谨,新中式抽离出传统中式元素,以现代手法加以展现。本套样板间在整体上,是以白色灰色等浅色系的颜色做为主导,一改传统中式浓重木色对比的沉闷感觉。
客厅是家居设计的核心区域,是我们长时间活动的区域,也是客人来访时的主打区域。客厅设计的好坏对于家居整体的颜值有很大的影响。


客厅
无论家居面积大小,卧室总是不能忽略的一个场所。装修时,有些小细节稍不注意,就可能影响到每天的睡眠质量和生活状态,所以,卧室装修是重中之重!

卧室
餐厅是家人休闲、互动的地方,因此在确定餐厅装饰风格后,在设计和布局上要注重空间的开阔,保证室内的通透和光线的充足,客厅和餐厅之间尽量减少阻碍,从视觉上扩大空间。

餐厅
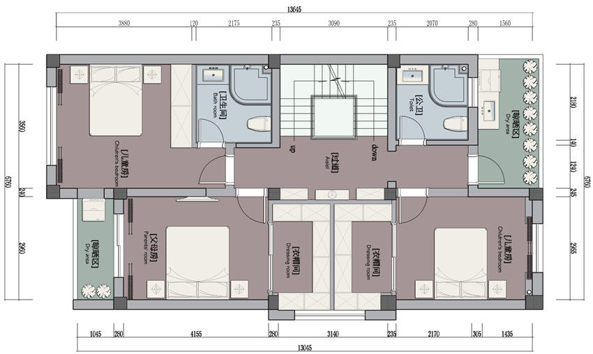
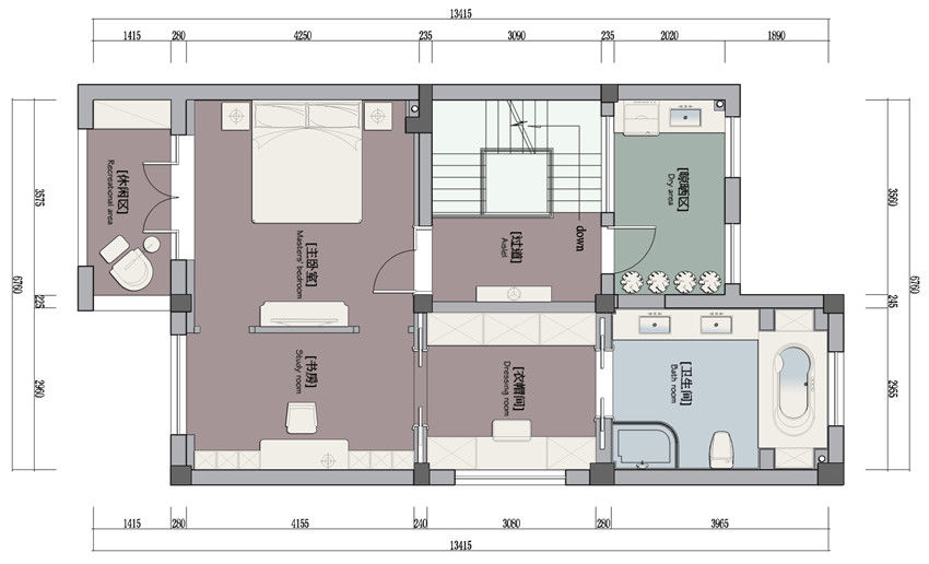
以下就是本套景山玫瑰园别墅小区400平米别墅房子的户型图。




户型图
400平米的房子如何装修才好呢?看完上述业主的分享,你心里是不是有了自己的想法呢?对于400平米的房子来说,打造成别墅更能满足日常生活的需求,而且风格能让室内更加美观、大气。
标题: 400平米风格别墅,预算38万 地址://xx.bzw315.com/shops/news/mt/461241.html
文章评论
-
1 莫焕晶被枪毙还是注射死刑 莫焕晶捐献器官了吗
-
2 150种常见多肉植物图鉴 全面的多肉植物图片及名称
-
3 剃须刀刀头多久换一次 电动剃须刀使用注意事项
-
4 钢管理论重量表大全 常用钢管规格型号一览表
-
5 生活小常识:家里有小飞虫怎么办?
-
6 标准篮球架高度 篮球架尺寸
-
7 百变家居装修灵感 想装哪款装哪款!
-
8 小公寓装修攻略分享 解决"小"问题创造"大"格局
-
9 喜鹊叫有什么兆头 喜鹊叫寓意大解析
-
10 家装水电工工资多少钱?
-
1 厨房这样装修橱柜,面板上骨头随便剁,用个几十年也不坏!
-
2 房顶漏水怎么办?房顶漏水原因分析、防治措施和处理方法
-
3 安装护墙角有用吗?护墙角材料和安装事项介绍
-
4 超小卧室该怎么设计?资深设计师6个设计技巧分享
-
5 人人都嫌弃的地面材料 工艺改进下比瓷砖还受欢迎
-
6 水电改造不一定就要走顶或走地 老师傅用这个方法也靠谱
-
7 全屋定制要注意哪些问题?有什么好用的装修避坑指南?
-
8 儿童学习桌是智商税?用它真能让孩子防近视和驼背吗?
-
9 马桶怎么挑选?最关键一点99%人都忽略了
-
10 卫生间潮湿易发霉别不做柜子 建议做壁龛设计
暂无评论,快来抢沙发!